Архитектурное бюро McBride Charles Ryan в 2009 году закончили интересный частный проект, который расположен в небольшом поселке Блэргори, штат Виктория, Австралия (Blairgowrie, Victoria, Australia).
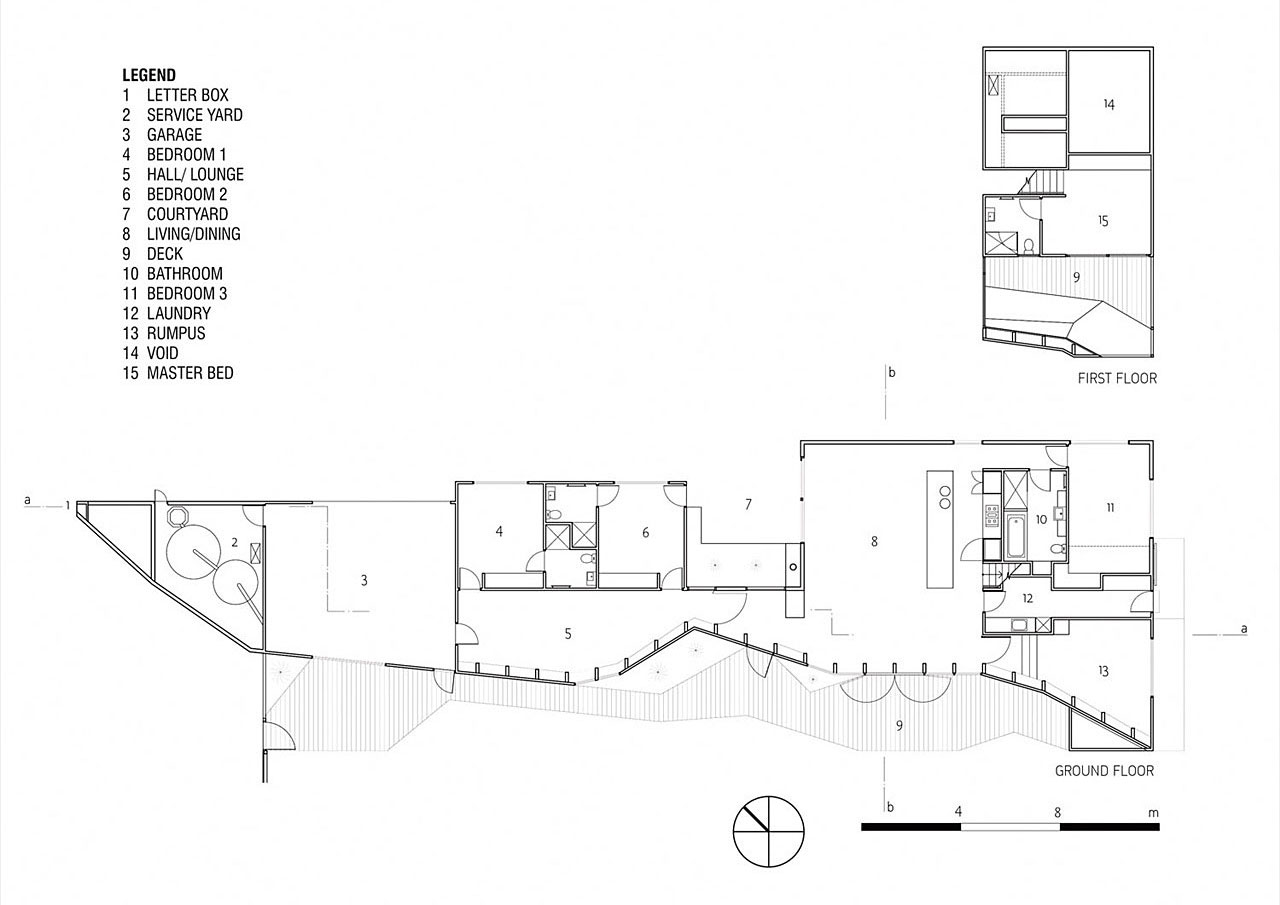
Общая площадь двухэтажной постройки – 290 м². Если кто не заметил, дом представляет собой цифру 7 в двух плоскостях (спереди и сверху), он как бы вырастает из цифры в дом, в котором предусмотрено три спальни, гараж на несколько автомобилей, большая кухня-гостиная, прачечная, веранда, гардеробная и другие необходимые помещения. Площадь земельного участка не уточняется, но она достаточно большая.


















































